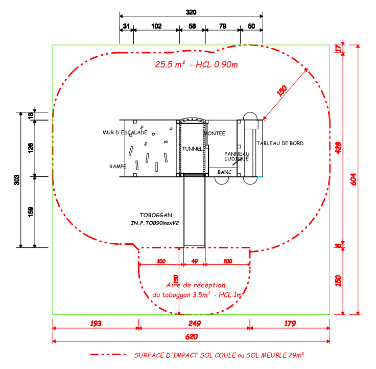
CAMION DE POMPIER 1B AVEC TOBOGGAN
Caractéristiques :
Ages : 2-8 ans
Nombre d'enfants : 15 enfants
Hauteur chute libre maxi : 1 m
Hauteur plancher : 0,90 m
Dimensions du jeu : 3,30 x 3,20 m
Montage :
Poids :
Zone d'impact
Zone d'impact
Besoin d'informations complémentaires ?
Vous avez un projet
d'aire de jeux ?
Contactez-nous !

