GRAPATOB 4
Features :
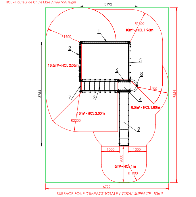
Ages : 4-12 years
Number of children : 21 children
Maximum free fall height : 2,50 m
Floor height : 1,80 m
Play dimensions : 5.75 x 3,19 m
Editing :
Weight :
Surface
Surface
Need more information ?
Do you have
a playground project ?
Please contact us!



