FIRE ENGINE 1B WITH SLIDE
Features :
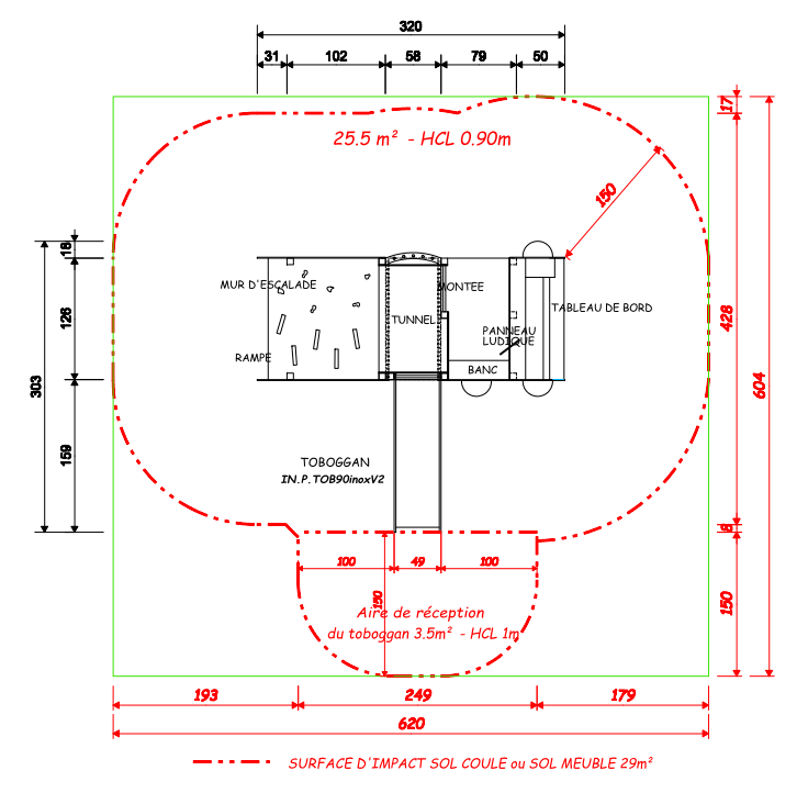
Ages : 2-8 years old
Number of children : 15 children
Maximum free fall height : 1 m
Floor height : 0,90 m
Play dimensions : 3,03 x 3,20 m
Editing :
Weight :
Surface
Surface
Need more information ?
Do you have
a playground project ?
Please contact us!

